パーク・ノヴァ池袋・要町 1階
ぜひ一度見ていただきたい、「パーク・ノヴァ池袋・要町」です。洗濯物を干して乾かせる浴室乾燥機付きのお風呂場のある物件です。住み心地がしっかりと考えられた中古マンションです。61.8㎡の専有面積でスペースの面でも問題なく快適に過ごせますよ。板橋区にお引越しなら、hals-realestate@abeam.ocn.ne.jpにお問い合わせ下さい。または、0422-30-5370から当社にお電話下さい。
ローンシミュレーションこの物件を購入した場合の、月々の支払い価格の一例です。借り入れを保証するものではございません。
- 返済期間
-
- 金利
-
- ボーナス時の増額(1回分)
-
- 借入金額:
-
- 頭金:
-

- 毎月の返済額:
(※元利均等方式 金利5.00%まで ※返済年数5~50年まで入力できます)
(※ボーナスは年2回で計算しています。1000万円まで入力できます)
(※物件購入時、その他諸費用が発生する場合がございます)
担当者のコメント 田上貢司

- 多くの方に好評の、3LDKの物件情報はこちらです。浄水器なら水道水をもっと美味しくすることができます。駅まで徒歩12分の場所に立地しています。浴室乾燥機をつけて湿気を除去すればカビの発生を予防できる、浴室乾燥機付きの物件です。要町近郊なら、通勤や通学で困ることはありません。そんな利便性の高い暮らしをお求めなら、地域に詳しい当社にお任せ下さい。
ポイント・特徴
物件概要
【中古マンション】 物件番号:98965576 情報更新日:2025年12月14日 次回更新予定日:2025年12月28日| 所在地 | 東京都板橋区南町43-3 | ||
|---|---|---|---|
| 交通 | |||
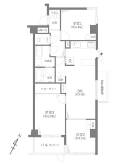
| 間取り/詳細 |
3LDK 洋室 6.0帖 1室/洋室 4.4帖 1室/洋室 4.3帖 1室/LDK 11.8帖 1室 |
||
| 専有面積/バルコニー面積 | 61.80㎡/6.75㎡ | ルーフバルコニー面積/テラス面積/専用庭面積 | -/-/- |
| 価格 | 5,199万円 | ||
| 管理費 | 23,480円 | ||
| 修繕積立金 | 14,540円 | 修繕積立基金 | - |
| 権利金 | - | 駐車場/月額料金 | -/ 有 25,000円/月 |
| 土地の敷金/保証金 | -/- | 借地料/借地期間 | -/- |
| 土地権利 | 所有権 | 国土法届出要否 | 不要 |
| 用途地域 | 第一種住居 | 地勢 | - |
| 種別/構造 | 中古マンション/鉄筋コンクリート | 向き | 南東 |
| 築年月(築年数) | 1987年 9月 (築38年) | ||
| 所在階/階建 | 1階/6階建 地下1階 | 棟総戸数/販売戸数 | 42戸/- |
| 管理組合有無 | - | 管理形態 | 管理会社に全部委託 |
| 管理員の勤務形態 | 日勤 | 管理会社 | 三井不動産レジデンシャルサービス株式会社 |
| 取引態様 | 仲介 | 現況 | 空家 |
| 引渡し | 即時 | 建築確認番号 | - |
| 物件番号 | 98965576 | 取引条件の有効期限 | 2025年12月28日 |
| リフォーム |
2025年11月 - |
||
| 設備条件 |
|
||
| 備考 | お風呂をすぐに温め直すことのできる、追い焚き機能付きです。洗濯物を干して乾かせる浴室乾燥機付きのお風呂場のある物件です。6.75平米の広さのバルコニー面積となっています。板橋区エリアで満足いくお住まいを、要町エリアで見つけましょう。0422-30-5370及びhals-realestate@abeam.ocn.ne.jpまでいつでも当社にご連絡ください。 | ||
| 取扱会社 |
|
||
※地図上に表示される物件の位置は付近住所に所在することを表すものであり、実際の物件所在地とは異なる場合がございます。


















